Primrose Mining
Primrose Mining
Image

Description

The Primrose Mining is a two-story home offering a fresh take on mountain-inspired living. It feels cozy and expansive simultaneously. The open floor plan features vaulted ceilings in the great room, and a large dining area flows seamlessly into the well-appointed kitchen, where family and friends will undoubtedly gather around the center island. A covered deck extends the living space outdoors, perfect for relaxing or hosting year-round. The primary bedroom is also located on the main level and has an en suite bath with a separate tub, shower, and water closet. A dedicated office just inside the front entrance rounds out the functionality of the main level. A space-saving staircase leads to three bedrooms upstairs, one of which has its own private bathroom. A shared bath is also located on the upper level. The unfinished basement has options for two more bedrooms, a flex space, and a large rec room.

Primrose Mining - Floor Plans

Primrose Mining - Main
Primrose Mining - Main
Primrose Mining - Upper
Primrose Mining - Upper
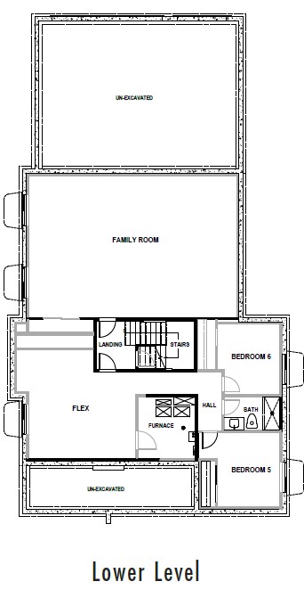
Primrose Mining - Basement
Primrose Mining - Basement

Model Homes

Community

Or
Image

All Move in Ready Homes

Image
Contact Us

We value your privacy

We use cookies, as outlined in our privacy policy, to improve your experience on our site. By clicking "Accept," you consent to our use of cookies.