Lincoln Farmhouse
Lincoln Farmhouse
Image

Description

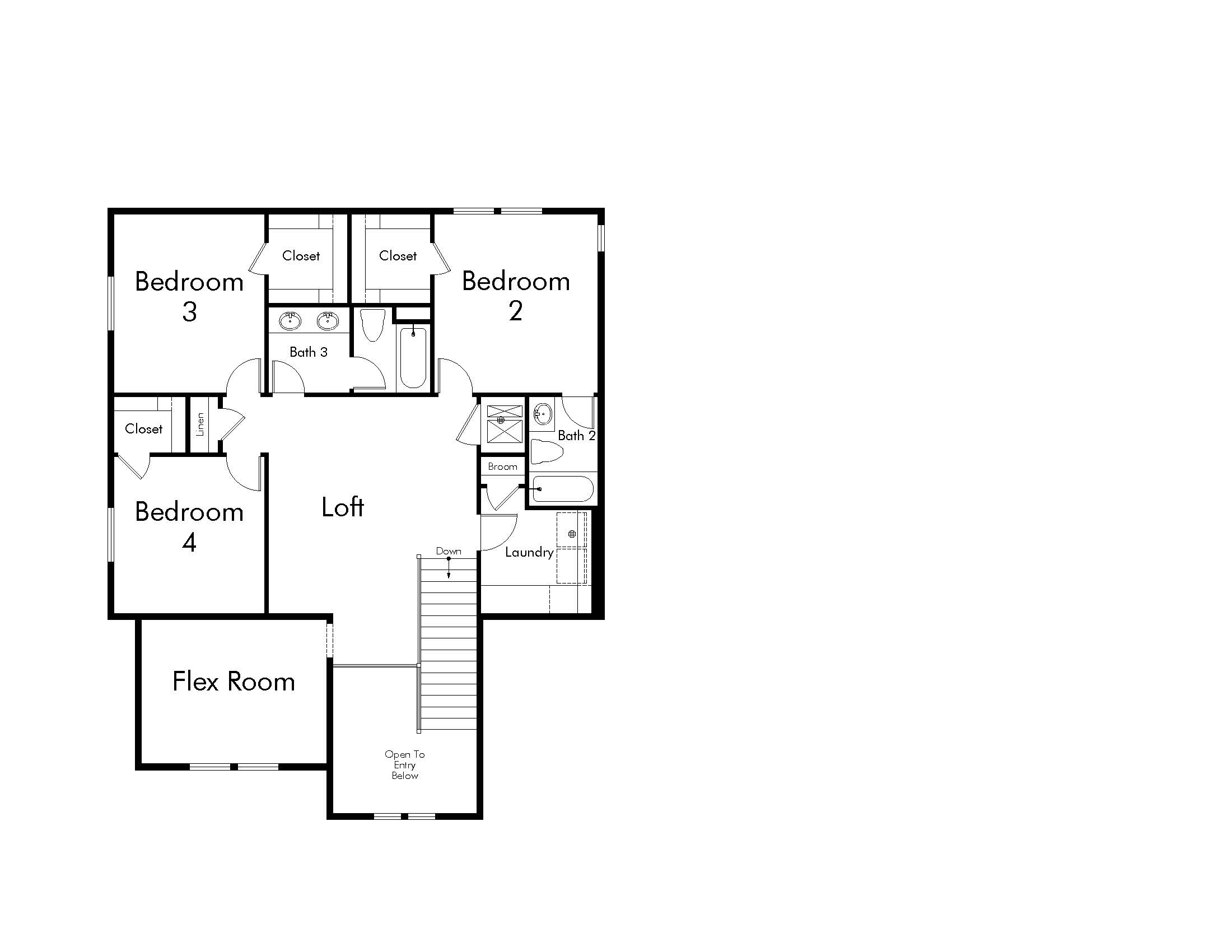
The Lincoln Farmhouse is a beautiful home that features a three-car, courtyard-style garage. On the main floor of the home, you will find the owner's bedroom, a large kitchen with double ovens, a separate cooktop, a large island, and a spacious pantry. You will also find a destination great room with vaulted ceilings and windows on three sides for ample light in the home. Going upstairs, there is a loft, a flex room for possible office, craft room, gym, or library, and a secondary bedroom suite with a private bath and walk-in closet.

Lincoln Farmhouse - Floor Plans

Main Level
Main Level
Upper Level
Upper Level
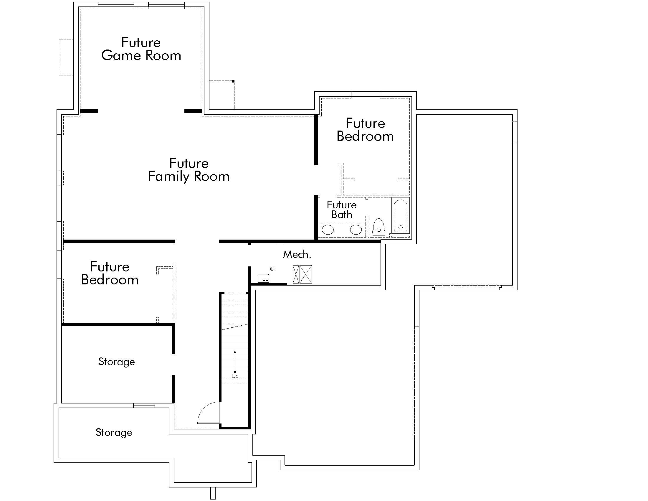
Basement Level
Basement Level

Model Homes

Community

Or
Image

All Move in Ready Homes

Image
Contact Us

We value your privacy

We use cookies, as outlined in our privacy policy, to improve your experience on our site. By clicking "Accept," you consent to our use of cookies. 

Ready to win BIG?

We want to send YOU to the Big Game in Santa Clara on Feb. 8th! Visit any Ivory Model Home and you could win two tickets to Football's Biggest Game! Click the link to enter, then boost your chances by touring additional Ivory Model Homes throughout Utah.