Murano Traditional
Image
54
Murano Traditional
Image

Description

A gracious and elegant rambler, the Murano gives you the little extras that transform a home into a masterpiece. A wide and sweeping entry welcomes you in. A cozy office includes french doors and gives you a getaway for paperwork or catching up on email. The front bedroom with a private bath makes a lovely guest suite. A spacious great room features an optional fireplace and opens to a gorgeous kitchen complete with island, built-in cooktop and huge walk-in pantry. The owner's suite is exceptional with vaulted ceilings, a garden tub, and separate shower.

Video Tour

Murano Traditional - Floor Plans

Main Level
Main Level
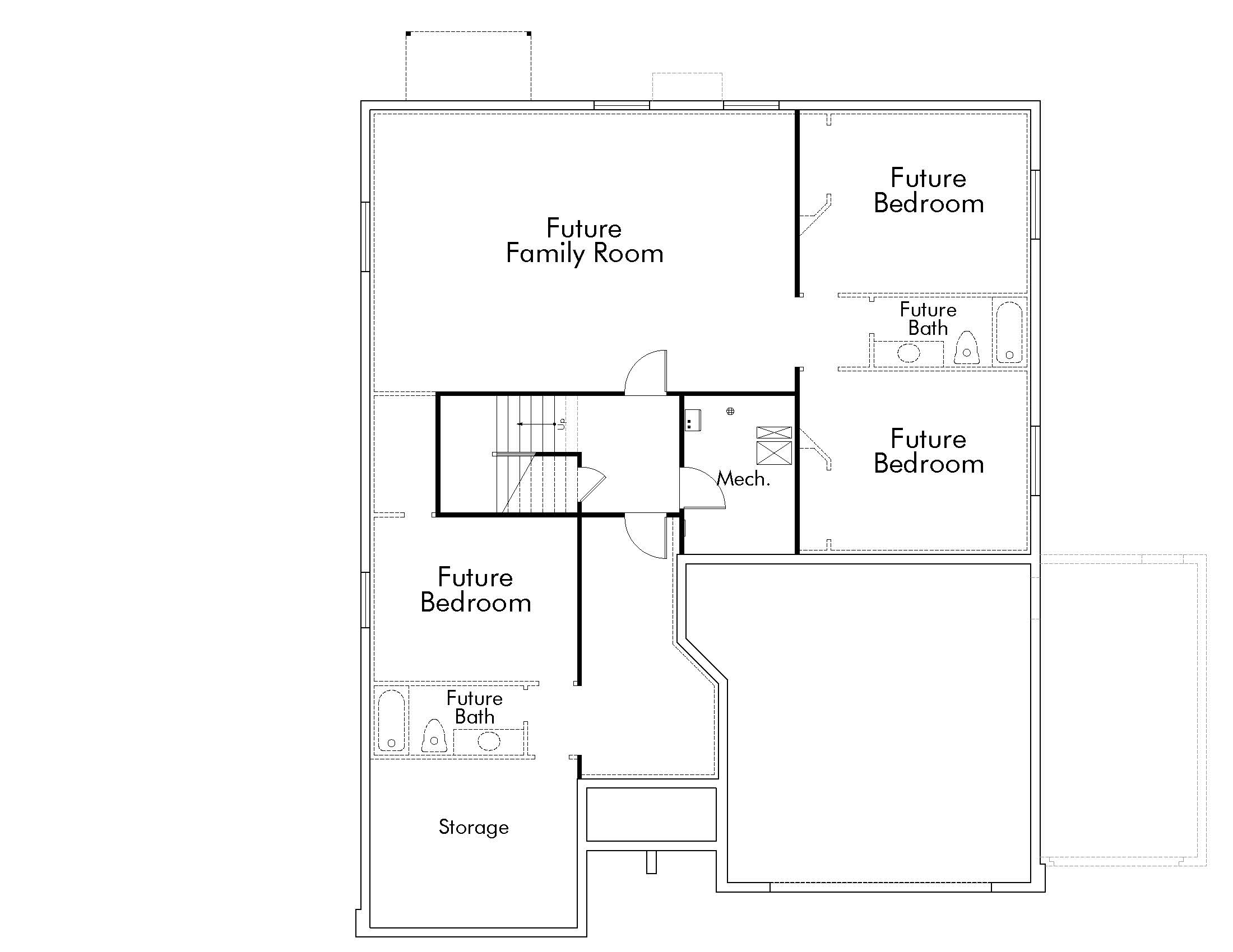
Lower Level
Lower Level

Model Homes

Community

Or
Image

All Move in Ready Homes

Image
Contact Us

We value your privacy

We use cookies, as outlined in our privacy policy, to improve your experience on our site. By clicking "Accept," you consent to our use of cookies. 

Ready to win BIG?

We want to send YOU to the Big Game in Santa Clara on Feb. 8th! Visit any Ivory Model Home and you could win two tickets to Football's Biggest Game! Click the link to enter, then boost your chances by touring additional Ivory Model Homes throughout Utah.