Butler Traditional
Butler Traditional
Image

Description

Welcome to the "Butler Traditional," a charming rambler that effortlessly combines classic design with modern functionality. This thoughtfully designed home greets you with a timeless exterior, showcasing its traditional appeal. As you step inside, you are welcomed by an open and inviting living space, featuring a stylish kitchen equipped with modern amenities. The main level is dedicated to comfort, boasting the primary suite for easy single-level living. The true gem of the Butler Traditional lies in the basement, where the potential for growth awaits. Two future bedrooms, awaiting your personal touch, provide flexibility for a growing family, guest quarters, or a home office. The Butler Traditional is not just a home; it's a canvas for your unique lifestyle, offering the perfect blend of classic charm and future possibilities. Embrace the warmth and adaptability of this traditional rambler, creating a space where memories are made and dreams can unfold.

Butler Traditional - Floor Plans

Main Level
Main Level
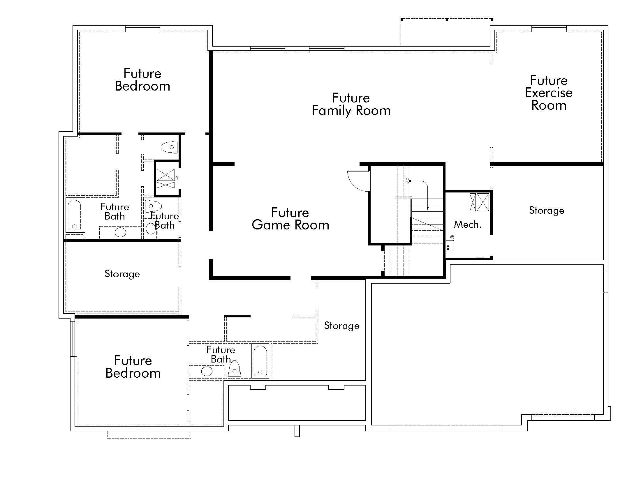
Basement Level
Basement Level

Model Homes

Community

Or
Image

All Move in Ready Homes

Image
Contact Us

We value your privacy

We use cookies, as outlined in our privacy policy, to improve your experience on our site. By clicking "Accept," you consent to our use of cookies.